Aller à :

  • Aller à la recherche
  • Aller au menu principal
  • Aller au contenu
0
  • Accueil
  • NOS AGENTS
  • NOS BIENS
  • NOUS CONTACTER
  • CRÉER UNE ALERTE
  • NOS OUTILS
  • REJOIGNEZ NOTRE ÉQUIPE
  • ESTIMATION
0
  • Acheter De l'ancien
Créez votre alerte e-mail
Dans un rayon de
Budget
Mini €
Maxi €

    Faites estimer votre bien par un professionnel

    Estimer votre bien
    1. Accueil
    2. Vente
    3. St etienne
    4. Autre
    Réf : 1187
    Autre
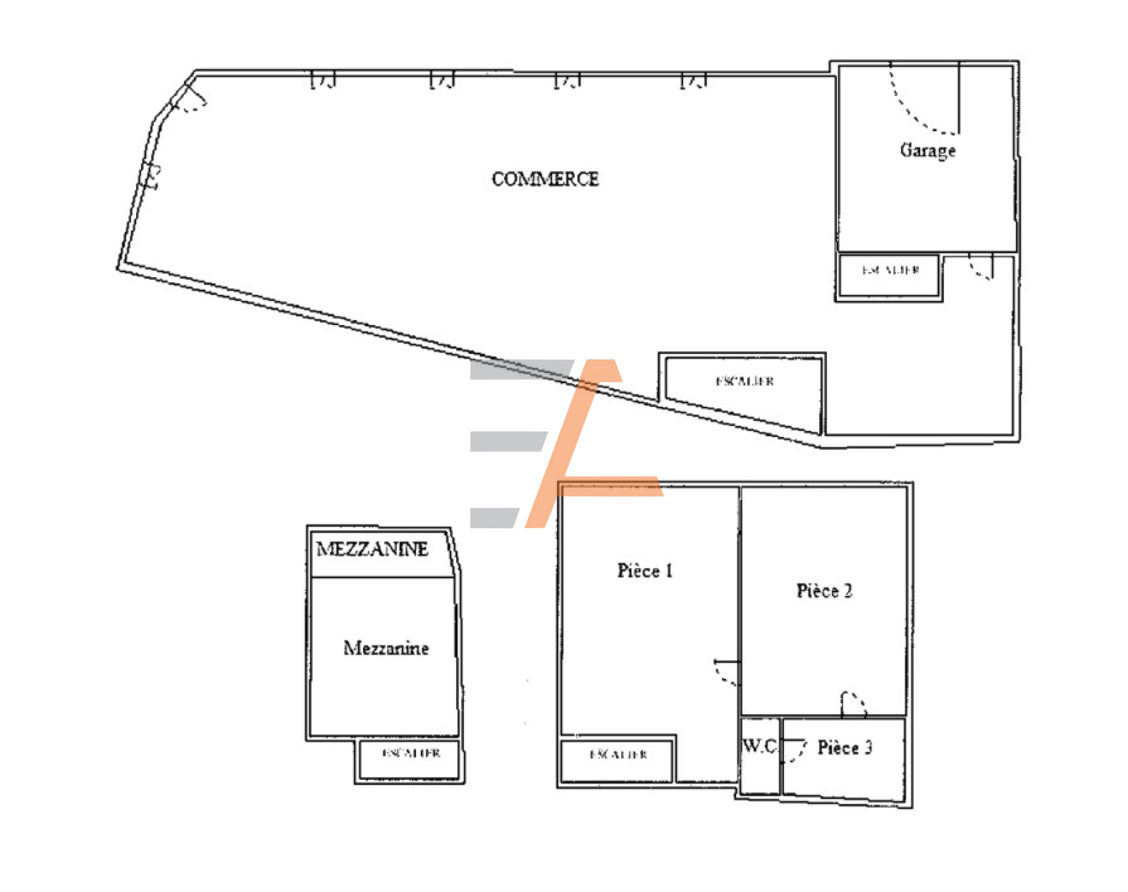
    Atelier + sous sol + garage
    Nombre de chambres 1
    Nombre de salles de bain 1
    128 000 €

    Atelier + sous sol + garage Saint-Étienne (42000)

    Local à usage d'atelier.

    Venez découvrir cet espace atypique de 156m² carrez, avec vitrine.

    Une partie de l'atelier a été aménager avec un coin cuisine, une chambre en mezzanine, une salle d'eau et un wc.

    Un sous sol utile est accessible directement du local.

    Un grand garage de complète ce bien.

    Idéal pour projet!

    • Général
    • Détails +
    • Financier
    • DPE
    • Quartier
    Caractérisque Valeurs
    Code postal 42000
    Surface habitable (m²) 156 m²
    Surface loi Carrez (m²) 156,41 m²
    Nombre de chambre(s) 1
    Nombre de niveaux 1
    Caractérisque Valeurs
    Nb de salle de bains 1
    Mode de chauffage Gaz de ville
    Type de chauffage TRAD_TYPE_CHAUFF_CHAUDIERE
    Format de chauffage Individuel
    Nombre de garage 1
    Caractérisque Valeurs
    Prix de vente honoraires TTC inclus 128 000 €
    DPE GES
    • Commerces et santé
    • Loisirs
    • Ecoles
    • Transports
    • Pratique
    Cette offre
    vous intéresse

    * champs obligatoires

    Les informations recueillies sur ce formulaire sont enregistrées dans un fichier informatisé par La Boite Immo agissant comme Sous-traitant du traitement pour la gestion de la clientèle/prospects de l'Agence / du Réseau qui reste Responsable du Traitement de vos Données personnelles. La base légale du traitement repose sur l'intérêt légitime de l'Agence / du Réseau. Elles sont conservées jusqu'à demande de suppression et sont destinées à l'Agence / au Réseau. Conformément à la loi « informatique et libertés », vous disposez des droits d’accès, de rectification, d’effacement, d’opposition, de limitation et de portabilité de vos données. Vous pouvez retirer votre consentement à tout moment en contactant directement l’Agence / Le Réseau. Consultez le site https://cnil.fr/fr pour plus d’informations sur vos droits. Si vous estimez, après avoir contacté l'Agence / le Réseau, que vos droits « Informatique et Libertés » ne sont pas respectés, vous pouvez adresser une réclamation à la CNIL. Nous vous informons de l’existence de la liste d'opposition au démarchage téléphonique « Bloctel », sur laquelle vous pouvez vous inscrire ici : https://www.bloctel.gouv.fr Dans le cadre de la protection des Données personnelles, nous vous invitons à ne pas inscrire de Données sensibles dans le champ de saisie libre.
    Ce site est protégé par reCAPTCHA, les Politiques de Confidentialité et les Conditions d'Utilisation de Google s'appliquent.

    Partager le bien
    Nos outils
    Imprimer Imprimer
    Calculatrice financière

    * Champ obligatoire

    Partager l'annonce

    * champs obligatoires

    Les informations recueillies sur ce formulaire sont enregistrées dans un fichier informatisé par La Boite Immo agissant comme Sous-traitant du traitement pour la gestion de la clientèle/prospects de l'Agence / du Réseau qui reste Responsable du Traitement de vos Données personnelles. La base légale du traitement repose sur l'intérêt légitime de l'Agence / du Réseau. Elles sont conservées jusqu'à demande de suppression et sont destinées à l'Agence / au Réseau. Conformément à la loi « informatique et libertés », vous disposez des droits d’accès, de rectification, d’effacement, d’opposition, de limitation et de portabilité de vos données. Vous pouvez retirer votre consentement à tout moment en contactant directement l’Agence / Le Réseau. Consultez le site https://cnil.fr/fr pour plus d’informations sur vos droits. Si vous estimez, après avoir contacté l'Agence / le Réseau, que vos droits « Informatique et Libertés » ne sont pas respectés, vous pouvez adresser une réclamation à la CNIL. Nous vous informons de l’existence de la liste d'opposition au démarchage téléphonique « Bloctel », sur laquelle vous pouvez vous inscrire ici : https://www.bloctel.gouv.fr Dans le cadre de la protection des Données personnelles, nous vous invitons à ne pas inscrire de Données sensibles dans le champ de saisie libre.
    Ce site est protégé par reCAPTCHA, les Politiques de Confidentialité et les Conditions d'Utilisation de Google s'appliquent.

    Détail des diagnostics énergétiques
    DPE GES

    Montant estimé des dépenses annuelles d'énergie de ce logement pour un usage standard est compris entre 3 536 € et 4 210 € . 2021 étant l'année de référence des prix de l'énergie utilisés pour établir cette estimation.

    Partager avec vos proches

    Facebook Facebook
    Messenger Messenger
    Twitter Twitter
    WhatsApp WhatsApp
    LinkedIn LinkedIn
    Copier le lien Copier le lien
    Se connecter
    Espace propriétaire
    Page d'accueil
    Page d'accueil

    © 2026 | Tous droits réservés | Traduction powered by Google |

    • Nos honoraires
    • Plan du site
    • Mentions légales
    • Admin
    • Nos liens
    • Politique RGPD
    • LinkedIn

    Comme beaucoup, notre site utilise les cookies

    On aimerait vous accompagner pendant votre visite. En poursuivant, vous acceptez l'utilisation des cookies par ce site, afin de vous proposer des contenus adaptés et réaliser des statistiques !

    Paramétrer

    Statistiques de visites

    Pour améliorer votre expérience, on a besoin de savoir ce qui vous intéresse !
    Les données récoltées sont anonymisées.

    ?

    Google Analytics

    requis
    ?

    Google Tag Mananger

    requis
    En savoir plus
    • Acheter De l'ancien
    Créez votre alerte e-mail
    Dans un rayon de
      Budget
      Mini €
      Maxi €
      Surface
      Mini m²
      Maxi m²

      Particularites

      Afficher les biens

      Faites estimer votre bien par un professionnel

      Estimer votre bien